G2电站锅炉司炉【新训】试卷8
第1题:TSG 08-2017《特种设备使用管理规则》规定特种设备在投入使用前或者投入使用后( )内,使用单位应当向特种设备所在地的直辖市或者设区的市的特种设备安全监管部门申请办理使用登记。
A、10日
B、30 日
C、20 日
D、45日
第2题:TSG 08-2017《特种设备使用管理规则》规定达到设计使用年限允许继续使用的特种设备,应当采取( )等措施,确保使用安全。
A、加强检验
B、加强检测
C、加强维护保养
D、其他选项都是
第3题:TSG 08-2017《特种设备使用管理规则》规定特种设备达到设计使用年限,使用单位认为可以继续使用的,应当按照安全技术规范及相关产品标准的要求,经检验或者安全评估合格,( )方可继续使用。
A、由使用单位安全管理负责人同意
B、使用单位主要负责人批准
C、办理使用登记变更后
D、其他选项都是
第4题:锅炉的安装、改造及重大维修过程,必须经( ),未履行该程序,或没达到合格标准,不得交付使用。
A、审批;
B、备案;
C、监督检验;
D、告知。
第5题:《特种设备安全监察条例》规定,制定本条例是为了防止和减少( ),保障人民群众生命和财产安全,促进经济发展
A、重大事故;
B、重特大事故;
C、一般事故;
D、事故。
第6题:特种设备作业人员在作业过程中发现事故隐患或者其他( ),应当立即向特种设备安全管理人员和单位有关负责人报告;特种设备运行不正常时,特种设备作业人员应当按照操作规程采取有效措施保证安全。
A、不安全因素;
B、技术问题;
C、设备问题;
D、作问题。
第7题:《中华人民共和国特种设备安全法》是全国人大颁布的( )
A、法律;
B、行政法规;
C、安全技术规范;
D、标准。
第8题:为防止脱硫后烟气携带水滴对系统下游设备造成不良影响,必须在吸收塔出口处加装()。
A、水力旋流器;
B、除雾器;
C、布风托盘;
D、再热器。
第9题:锅炉热损失共有几项()。
A、四项;
B、五项;
C、六项;
D、七项。
第10题:风机在工作过程中,不可避免地会发生流体(),以及风机本身的传动部分产生摩擦损失。
A、摩擦;
B、撞击;
C、泄漏;
D、摩擦、撞击、泄漏。
第11题:TSG 08-2017《特种设备使用管理规则》规定按照有关安全技术规范要求,特种设备拆卸后移装需要进行检验的,应当向特种设备检验机构( )。
A、告知
B、 申请变更
C、申请自检
D、申请检验
第12题:TSG 08-2017《特种设备使用管理规则》规定特种设备整体移装的,使用单位应当进行( )。
A、申请定检
B、申请监检
C、办理告知
D、自行检查
第13题:某厂#4炉高温过热器爆管,停机处理。检查发现高温过热器管有一长约100mm,宽约30mm的爆口, 管道局部胀粗较为明显,爆破口呈尖锐的喇叭形,其边缘很锋利,具有韧性的断裂特征,呈断裂状,没有发现平行于破口的轴向裂纹,爆口前后管壁无明显减薄。据爆口形状和周围情况可初步判断此次爆管属.
A、长期过热;
B、短期过热;
C、烟气冲刷磨损;
D、施工质量问题。
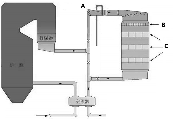
第14题:在脱硝工艺流程图中B是( )

A、喷氨格栅
B、喷氨格栅催化剂
C、整流格栅
第15题:下图为锅炉排污图,其具体指的是( )

A、定期排污示意图
B、连续排污示意图
C、混合排污示意图
第16题:TSG 08-2017《特种设备使用管理规则》规定特种设备作业人员应当取得相应的特种设备( )。
A、节能与安全证书
B、运行证书
C、人员培训合格证书
D、作业人员资格证书
第17题:TSG 08-2017《特种设备使用管理规则》规定要求设置安全管理机构的使用单位以及符合一定条件的特种设备使用单位,应当配备专职安全管理员且( )。
A、 经过应急演练
B、经过相应的特种设备安全管理人员培训
C、取得相应的特种设备安全管理人员资格证书
D、使用过三类以上特种设备的经历
第18题:TSG 08-2017《特种设备使用管理规则》规定要求设置安全管理机构的使用单位以及符合下列条件( )特种设备使用单位,应当配备专职安全管理员。
A、使用各类特种设备(不含气瓶)总量 10 台及以上的
B、使用各类特种设备(不含气瓶)总量 15 台及以上的
C、使用各类特种设备(不含气瓶)总量 20 台及以上的
D、使用各类特种设备(不含气瓶)总量 30 台及以上的
第19题:TSG 08-2017《特种设备使用管理规则》规定要求设置安全管理机构的使用单位以及符合下列条件( )特种设备使用单位,应当配备专职安全管理员。
A、使用长输管道的
B、使用公用管道的
C、使用 10 公里以上(含 10 公里)工业管道的
D、使用 20公里以上(含 20 公里)工业管道的
第20题:TSG 08-2017《特种设备使用管理规则》规定要求设置安全管理机构的使用单位以及符合下列条件( )特种设备使用单位,应当配备专职安全管理员。
A、使用 5 台及以上第Ⅲ类固定式压力容器的
B、使用 10台及以上第Ⅲ类固定式压力容器的
C、使用 5 台及以上第Ⅱ类固定式压力容器的
D、使用10台及以上第Ⅱ类固定式压力容器的
第21题:TSG 08-2017《特种设备使用管理规则》规定特种设备安全管理员是指具体负责特种设备( )的人员。
A、运行值班
B、维护修理
C、使用安全管理
D、设备管理
第22题:TSG 08-2017《特种设备使用管理规则》规定特种设备使用单位应当根据本单位特种设备的数量、特性等配备适当数量的( )。
A、运行人员
B、主管人员
C、安全管理员
D、协调人
第23题:根据《特种设备安全法》第九十二条,特种设备( )不履行岗位职责,违反操作规程和有关安全规章制度,造成事故的,吊销相关人员的资格。
A、安全管理人员
B、作业人员
C、检测人员
D、其他选项皆是
第24题:根据《特种设备安全法》第九十一条,对事故发生负有责任的单位的主要负责人未依法履行职责或者负有领导责任的,应按照规定处以罚款,下列哪些说法是正确的。( )
A、发生一般事故,处上一年年收入百分之三十的罚款
B、发生较大事故,处上一年年收入百分之四十的罚款
C、发生重大事故,处上一年年收入百分之六十的罚款
D、其他选项皆是
第25题:2006年1月20日,四川眉州市仁寿县富加镇境内中石油西南油气田分公司富加输气站,发生一起天然气管道爆炸着火事故,造成10人死亡,3人重伤,47人轻伤。按《特种设备安全监察条例》,此事故属于( )
A、特别重大事故
B、重大事故
C、较大事故
D、一般事故
第26题:按照《特种设备作业人员监督管理办法》,小王想要获得特种设备安全管理人员证,那么他会经过怎么样的程序才能获得此证?(即特种设备作业人员考试和审核发证程序)
A、考试、领证申请、受理、审核、发证
B、考试、领证申请、受理、发证
C、考试报名、考试、领证申请、发证
D、考试报名、考试、领证申请、受理、审核、发证
第27题:按照《特种设备作业人员监督管理办法》,申请人小王已经在指定的考试机构考试合格了,现在需要持( )向考试场所所在地的发证部门申请办理《特种设备作业人员证》。
A、身份证
B、户口
C、考试合格凭证
D、考试申请书
第28题:按照《特种设备作业人员考核管理规则》,小王想要申请特种设备安全管理人员证,他应当首先向( )市场监督管理部门指定的特种设备作业人员考试机构(以下简称考试机构)报名参加考试。
A、省级
B、市级
C、区(县)级
D、国家
第29题:锅炉水处理人员不包括( )
A、锅炉水处理检验人员;
B、锅炉化学清洗单位的清洗操作人员;
C、锅炉管理人员;
D、锅炉使用单位的水处理管理操作人员。
第30题:特种设备安全管理机构的作用不包括( )。
A、落实国家有关安全生产的法律法规;
B、负责日常安全监察;
C、组织本单位内部特种设备安全检查;
D、整改各种事故隐患。
第31题:某发电总厂二厂#1炉整套启动168小时试运中,机组300MW满负荷运行,次日0时17分27秒,炉膛压力开始波动,火检不稳。炉膛压力高报警但未到跳闸值。就地检查发现#1炉两侧二次风箱向内垮塌,立即手动MFT停炉。据以上现象分析#1炉燃烧失稳,炉膛压力波动,是造成二次风箱垮塌的根本原因。
A、正确
B、错误
第32题:某公司运行人员发现#3炉吹灰减温水手动阀的盘根压盖处有渗水现象,联系锅炉检修人员办票处理,在检修人员试图拧紧盘根压盖时,漏量加大无法处理。申请停机消缺。泄漏的阀门在此前机组检修中,由外包单位解体检修。造成此次停机事件的根本原因是承包商工作质量不高,本公司检修质量管理不到位。
A、正确
B、错误
第33题:《中华人民共和国特种设备安全法》要求特种设备使用单位应当对其使用的特种设备的安全附件、安全保护装置进行定期校验、检修,必要时还应作出记录。
A、正确
B、错误
第34题:某厂锅炉风扇磨夜间发生故障,值长安排将风扇磨停电挂“禁止合闸,有人工作”牌并在交班记录中记录工作信息,没有办理工作票,即许可检修工作。检修人员到现场没有插入分离器出口插板(此项工作规定由检修人员完成)即进入分离器内开始工作。锅炉运行中发生正压,导致分离器煤粉爆燃,造成在分离器内工作的人员1死1重伤。此次事故的主要原因就是无票工作。
A、正确
B、错误
第35题:某电厂#3锅炉在安全门热态整定过程中,高温段省煤器出口联箱至汽包联络管直管段发生爆破,造成5人死亡,3人严重烫伤。分析发现故障管段外壁侧存在纵向裂纹,安全门整定过程中,发生瞬时过载断裂。采用升压实跳的方式进行锅炉压力容器安全阀校验,本身存在管道寿命减少、噪音污染、密封面的损坏等弊端。因此可以采用其他适当替代方式进行安全阀校验调整。
A、正确
B、错误
第36题:碳是煤中发热量最高的物质。
A、正确
B、错误
第37题:锅炉漏风可以减小送风机电耗。
A、正确
B、错误
第38题:锅炉优化燃烧调整主要目的是提高燃烧经济性,提高排烟温度。
A、正确
B、错误
第39题:在机组负荷不变的情况下,减温水喷入再热器后,增加中、低压缸的出力,限制汽轮机高压缸的出力,必然降低整个机组热经济性。
A、正确
B、错误
第40题:当锅炉炉膛出口过量空气系数为常数时,炉膛漏风与烟道漏风对排烟热损失的影响相同,对化学和机械热损失影响相同,因此对锅炉效率的影响也相同。
A、正确
B、错误
第41题:DL/T 904-2015《火力发电厂技术经济指标计算方法》规定:锅炉氧量测点设置在空气预热器入口烟道或空气预热器出口烟道。当锅炉尾部有两个或两个以上烟道,锅炉氧量取各烟道烟气氧量的平均值。
A、正确
B、错误
第42题:当空气预热器严重堵灰时,其入口烟道负压增大,出口烟道负压减小,锅炉压力周期性波动。
A、正确
B、错误
第43题:某厂1000MW #6炉锅炉测漏装置异常报警,锅炉部检修人员判断,可能为水冷壁泄漏,停炉检修。检查发现:螺旋管水冷壁出口一弯头处迎火面爆开,吹伤附近多根水冷壁管。使用内窥镜检查,发现爆口管水冷壁节流孔圈处,有异物堵塞管口。相比于汽包炉直流炉水冷壁管更容易因异物堵塞而爆管。
A、正确
B、错误
第44题:锅炉房设计应根据建设单位的需要进行。
A、正确
B、错误
第45题:某公司600MW #3炉运行期间,磨煤机石子煤工报告,磨煤机A(中速碗式磨煤机)风道冒烟,立即停磨隔离,联系检修人员处理,检修人员检查发现磨煤机A侧机体结煤燃烧且已经结焦。风道导流叶片局部烧穿。碗式磨煤机侧机体石子煤燃烧,是磨煤机长时间高负荷运行造成的。
A、正确
B、错误
第46题:某厂300MW #6机负荷145MW,丙给水泵运行,甲、乙给水泵备用,运行中丙给水泵处“咣当”一声,电流由400A下降200A,泵出口压力由13MPa降至9MPa,给水流量到零,汽机值班员立即抢合乙给水泵并停丙泵;抢合后乙泵液偶勺管在50%处卡,汽包水位迅速下降到-250mm,按紧急停炉处理。停炉后抢合甲给水泵成功,锅炉重新点火恢复运行。事后检修检查丙给水泵设备完好,乙给水泵液偶勺管调节故障,给水自动调节装置低负荷时段特性不佳。分析认为运行人员对给水调节系统出现的异常情况应对不当,是造成锅炉停炉的主要原因。
A、正确
B、错误
第47题:某电厂装机为2×125MW高温高压抽汽式供热机组,由于燃煤供应不足,为保证供热,被迫开始燃用临时采购的非设计煤种,两台锅炉受热面出现结焦现象,运行人员调整无效,进而锅炉结焦恶化,#1、2锅炉炉检修。运行人员的调节水平不是造成该厂安全生产被动局面的主要原因。
A、正确
B、错误
第48题:安全生产中的“三违”现象是指:违章指挥、违章操作、违反规章制度。
A、正确
B、错误
第49题:DL/T 904-2015《火力发电厂技术经济指标计算方法》规定:新设备或大修后设备的烘炉、暖机、空载运行的电量,应计入生产厂用电的计算。
A、正确
B、错误
第50题:DL/T 1464-2015《燃煤机组节能诊断导则》规定:中速磨煤机出口各煤粉管一次风分配偏差应为5%~10%。石子煤量宜小于磨煤机出力的0.05%,石子煤热值宜小于6.27MJ/kg。
A、正确
B、错误
第51题:DL/T 852-2004《锅炉启动调试导则》规定:由于失去引风机导致紧急停炉时,则应缓慢地把所有烟风挡板调到全开位置,建立尽可能大的自然通风不少于15min。
A、正确
B、错误
第52题:DL/T 468-2004《电站锅炉风机选型和使用导则》规定:离心式风机应避免调节门开度在40%以下长期运行。
A、正确
B、错误
第53题:GB 50660-2011《大中型火力发电厂设计规范》规定:选择性催化还原烟气脱硝装置宜布置在锅炉省煤器和空气预热器之间。
A、正确
B、错误
第54题:DL/T 904-2015《火力发电厂技术经济指标计算方法》规定:制粉系统耗电率是指统计期内磨煤机消耗的电量与机组发电量的百分比。
A、正确
B、错误
第55题:DL/T 904-2015《火力发电厂技术经济指标计算方法》规定:空预器漏风率与漏风系数是一个概念。
A、正确
B、错误
第56题:《特种设备安全法》规定:特种设备的生产(包括设计、制造、安装、改造、修理)、经营、使用、检验、检测和特种设备安全的监督管理,适用本法。( )
A、正确
B、错误
第57题:《中华人民共和国特种设备安全法》已由中华人民共和国第十二届全国人民代表大会常务委员会第三次会议于2013年6月29日通过,现予公布,自2013年7月1日起施行。( )
A、正确
B、错误
第58题:锅炉的净效率是从锅炉热效率中扣除锅炉机组自用电耗折算的热损失和锅炉本身消耗热能之后的效率数值。
A、正确
B、错误
第59题:火力发电厂中的锅炉按水循环方式分为自然循环锅炉、控制循环锅炉和直流锅炉三种类型。
A、正确
B、错误
第60题:过热蒸汽流程中进行左右交叉,有助于减轻沿炉膛方向由于烟温不均而造成热负荷不均的影响,也是有效减少过热器左右两侧热偏差的重要措施。
A、正确
B、错误
第61题:过热器的作用是将由汽包来的未饱和蒸汽加热成过热蒸汽。
A、正确
B、错误
第62题:在锅炉点火初期,控制进入炉膛的燃料量是为了满足汽包上、下壁温差的要求和避免过热器和再热器受热面被烧坏。
A、正确
B、错误
第63题:影响煤粉经济细度的主要因素是化学不完全燃烧和制粉消耗。
A、正确
B、错误
第64题:回转式空气预热器蓄热元件温度高于烟气露点时,烟气中的硫酸蒸汽凝结在预热器蓄热元件上,对其造成低温腐蚀。
A、正确
B、错误
第65题:《特种设备安全法》规定:未按照规定实施充装前后的检查、记录制度的,应责令改正,处十万元以上二十万元以下罚款。( )
A、正确
B、错误
第66题:《特种设备安全法》规定:特种设备使用单位使用国家明令淘汰、已经报废的特种设备的,责令停止使用有关特种设备,处三万元以上五万元以下罚款:( )
A、正确
B、错误
第67题:《特种设备安全法》规定:特种设备使用单位未对其使用的特种设备进行经常性维护保养和定期自行检查的,责令限期改正;逾期未改正的,责令停止使用有关特种设备,处一万元以上十万元以下罚款:( )
A、正确
B、错误
第68题:《特种设备安全法》规定:特种设备经营单位销售、出租国家明令淘汰、已经报废的特种设备的,应责令停止经营,没收违法经营的特种设备,处三万元以上三十万元以下罚款;有违法所得的,没收违法所得。( )
A、正确
B、错误
第69题:《特种设备安全法》规定:特种设备生产单位不再具备生产条件的,应责令限期改正;逾期未改正的,责令停止生产,处五万元以上五十万元以下罚款;情节严重的,吊销生产许可证。( )
A、正确
B、错误
第70题:《特种设备安全法》规定:违反本法规定未进行型式试验的,且逾期未改正的,处三万元以上五万元以下罚款。( )
A、正确
B、错误
第71题:《特种设备安全法》规定:违反本法规定未进行型式试验的,可责令其限期改正。( )
A、正确
B、错误
第72题:《特种设备安全法》规定:违反本法规定已经实施安装、改造、修理的,责令恢复原状或者责令限期由其他单位重新安装、改造、修理。( )
A、正确
B、错误
第73题:《特种设备使用管理规则》(TSG08-2017)替代了TSG R5001—2005《气瓶使用登记管理规则》。( )
A、正确
B、错误
第74题:《特种设备安全法》规定:为了加强特种设备安全工作,防止和减少特种设备事故,保障人生和财产安全,促进经济社会发展,制定本法()
A、正确
B、错误
第75题:《特种设备安全法》规定:特种设备目录由国务院负责特种设备安全监督管理的部门制定,报国务院备案后执行。( )
A、正确
B、错误
第76题:《特种设备安全法》规定:国家对特种设备实行目录管理。( )
A、正确
B、错误
第77题:《特种设备安全法》规定:本法所称特种设备,是指对公众安全有较大危险性的锅炉、压力容器(含气瓶)、压力管道、电梯、起重机械、客运索道、大型游乐设施、场(厂)内专用机动车辆,以及法律、行政法规规定适用本法的其他特种设备。( )
A、正确
B、错误
第78题:煤灰的化学成分中Si02、Al2O3、CaO、MgO是高熔点灰分
A、正确
B、错误
第79题:生物质资源是可再生能源资源的重要组成部分。
A、正确
B、错误
第80题:珠光体是铁素体和渗碳体一起组成的机械混合物,具有良好的耐热性。
A、正确
B、错误
第81题:按脱硫剂不同烟气脱硫的方法有()
A、石灰石-石膏法
B、氧化镁为基础的镁法
C、亚硫酸钠、氢氧化钠为基础的钠法
D、合成氨为基础的氨法
E、有机碱法
第82题:电动机引发过热和起火的原因是()
A、绕组短路或接地;
B、转子串轴;
C、振动;
D、缺相运行;
E、过负荷
F、超速;
第83题:对蒸汽调节方法的基本要求是()
A、调节惯性或时滞要小
B、调节范围要大
C、设备的结构简单可靠
D、对循环的效率影响要小
E、附加的设备和金属消耗要小
第84题:防止及减轻过热器和再热器腐蚀措施的有()
A、采用低氧燃烧技术
B、控制管壁温度
C、选择合理的炉膛出口烟温
D、定时对过热器和再热器进行吹灰
第85题:循环流化床锅炉物料系统常发生的严重事故有()等。
A、床料结焦事故;
B、翻床事故
C、旋风分离器耐磨内衬脱落事故、分离器内筒耐火层塌落事故;
D、回料器堵塞、回料器返空料事故、烟气短路事故;
E、冷渣器烧毁变形和超载事故。
第86题:中华人民共和国环境保护法固定环境保护坚持原则是什么?()
A、环境保护坚持保护优先;
B、预防为主、综合治理;
C、公众参与;
D、损害担责的原则。
第87题:安全生产的目的包括( )。
A、防止和减少生产安全事故;
B、保障人民生命财产安全;
C、促进经济发展;
D、降低项目成本。
第88题:特种设备作业人员违反特种设备的操作规程和有关的安全规章制度操作,或在作业过程中发现事故隐患或者其他不安全因素,未立即向现场安全管理人员和单位有关负责人报告的,应承担的责任是( )。
A、由特种设备使用单位给予批评教育、处分;
B、由特种设备使用单位给予经济处罚;
C、情节严重的,撤销特种设备作业人员资格;
D、触犯刑律的,依照刑法关于重大责任事故罪或者其他罪的规定,依法追究刑事责任。
第89题:锅炉房设计应符合下列要求( )。
A、锅炉房内的设备布置应便于操作、通行和检修;
B、应有足够的光线和良好的通风以及必要的降温和防冻措施;
C、地面应平整无台阶,且应防止积水;
D、锅炉房承重梁柱等构件与锅炉应有一定距离或采取其他措施,以防止受高温损坏。
第90题:《特种设备使用管理规则 》(TSG 08-2017)规定,使用单位应当逐台建立特种设备安全与节能技术档案,以下属于安全技术档案的是( )。
A、使用登记证、《特种设备使用登记表》;
B、特种设备的设计、制造技术资料和文件,包括设计文件、产品质量合格证明(含合格证及其数据表、质量证明书)、安装及使用维护保养说明、监督检验证书、型式试验证书等;
C、特种设备的安装、改造和修理的方案、图样、材料质量证明书和施工质量证明文件、安装改造维修监督检验报告、验收报告等技术资料;
D、特种设备的日常使用状况记录、定期自行检查记录和定期检验报告;
第91题:GB 18485—2014《生活垃圾焚烧污染控制标准》规定,生活垃圾焚烧电厂锅炉大气污染物排放标准(24小时均值)是多少?()
A、颗粒物 20mg/m3;
B、氮氧化物250mg/m3;
C、氯化氢 50mg/m3;
D、二氧化硫80mg/m3;
第92题:生活垃圾焚烧发电厂常规大气污染物包括下列哪些()
A、颗粒物;
B、氮氧化物;
C、氯化氢;
D、二氧化硫和一氧化碳。
第93题:DL/T 1052-2016《电力节能技术监督导则》规定,中、低流量变化类型的风机和泵在满足压力时,符合下列哪些条件()适宜变频调速改造。
A、流量变化幅度≥30%、变化工况时间率≥40%、年运行时间≥3000h;
B、流量变化幅度≥20%、变化丄况时间率≥30%、年运行时间≥4000h;
C、流量变化幅度≥10%、变化工况时间率≥30%、年运行时间≥5000h;
D、流量变化幅度≥10%、变化工况时间率≥20%、年运行时间≥5000h。
第94题:《生活垃圾焚烧发电厂自动监测数据标记规则》规定自动监测异常标记包括哪几种?()
A、烟气排放连续监测系统维护(以下简称CEMS维护);
B、通讯中断;
C、炉温异常;
D、热电偶故障。
第95题:生态环境部下发环办执法﹝2019﹞64号文规定的环保电子督办有哪几种?()
A、事前预警;
B、事中调度;
C、事后处理;
D、事后处罚。
第96题:《中华人民共和国特种设备安全法》规定,特种设备的生产(设计、制造、安装、改造、修理)、( )和特种设备安全的监督管理,适用本法。
A、经营
B、运输
C、使用
D、检验
第97题:循环流化床锅炉调整床温方法有()
A、调整一、二次风量;
B、调整给煤量;
C、控制物料循环量
D、调整进水温度
第98题:大容量锅炉常采用()省煤器。
A、管式
B、沸腾式
C、铁式
D、腾式
第99题:特种设备安装、改造及重大维修的施工单位应当在施工前将拟进行的特种设备安装、改造、维修情况书面告知( )特种设备安全监督管理部门。
A、省级;
B、直辖市;
C、设区的市;
D、县(市、区)。
第100题:影响炉内脱硫的因素有哪些?()
A、吸收剂喷入点的烟气温度;
B、吸收剂在炉内的扩散速度;
C、吸收剂的反应活性‘’
D、在烟气温度从1200℃降到750℃区域内,吸收剂的停留时间。